POWERED IMPACT TESTED SLIDING GATE

OVERVIEW:
Our recommended impact tested sliding gate
is preferred as its appearance is not too
aggressive. It is similar to look at as a
normal gate, but has high impact absorption.
The benefit of this type of gate is that it
prevents debris dispersion, which occurs with
roadblockers or bollards. Gate is tested to
PA68 highest standard click here to link


 

USE:
Entrances with high security rating and where aesthetics are a requirement. Especially recommended where potential target structures are near to the site boundary.

SIZE:
To suit road widths up to 6m but a 4m clear opening is preferred from the security-single lane-principle. Height as required.

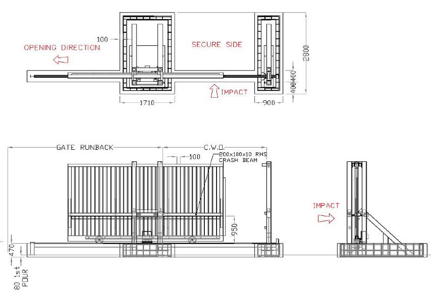
CONSTRUCTION:
Outer framing from hollow section mild steel, but middle rail and bottom beam of high tensile steel. Infill of square section bars (as illustrated), decorative features, or solid steel sheet.
Gates run on guide rail with hard, steel wheels and roller bearings with facility to replace.
Sliding gates operate between two sets of square section double guide posts and one double closing post.All posts with raking back strut fitting at 45º to absorb any impact and transfer same to foundation.

DRIVE:
Electro mechanical drive unit set between the guide posts, with motor, gear box, and clutch system for manual disengaging if necessary. Drive via pinion engaging with rack, fitted to the inside of the bottom rail of the gate leaf. All enclosed in lockable, steel cabinet.
Opening and closing controlled by roller limit switches.
Speed of opening 6 to 8 seconds per meter for standard operation and 3 to 5 seconds per meter for fast operation.

POWER SUPPLY:
415/240v 3 phase, 50Hz. Alternative voltages on request.
Motor size depends on gate width and infill.
Control voltage 24V DC
IP55 wiring standard through.

CONTROL:
- Push button open-stop-close
- Alternative hold to run key switch for gate house operation.
- Additional key switch in drive unit post for local operation
- Card system - swipe/proximity/magnetic in freestanding post for cars, or cars and trucks 2 tier, intercom unit and hand set
- Induction loop – auto close, auto exit
- Biometric reader systems

SAFETY AND SECURITY OPTIONS:
- Red/green 200mm diameter traffic light, single/double sided. Green only shows when gate fully open.
- Infrared beam. Stops gate operation when interrupted.
- Flashing yellow lights when gate moving.
- Vehicle detection induction loop system.
- Vertical extension for flat wrap razor wire (Click to link razor wire) – Vertical spikes 100mm long at 100mm centres.
- Serrated top rail.

FINISH:
All gate components galvanised by zinc spray and factory painted to clients colour.

INSTALLATION:
Gate, track and posts require only 500mm deep foundations.
Posts and back strut supplied with reinforcing basket for concreting in – 2.8m long, 1.7m wide for double guide posts and 2.8m long x 900mm wide for closing posts.