IMPACT RATED LOWERING
TELESCOPIC TYPE TT BOLLARD

OVERVIEW:
A new innovative and long awaited
product for the security industry.
A fully physically tested impact rated to
PAS68 subsequently CWA 16221 lowering telescopic bollard with
shallow foundation.

fence_enhancement
 

USE:
Impact rated bollards of the lowering type are highly effective in preventing forcible vehicle attack on high security sites. The depth of the foundation has always been an issue in urban areas and this is why this new product is going to be so successful. The TT telescopic bollard has been successfully tested with a 7.5 tonne truck travelling at 40 MPH (64 KPH) with minimal penetration.

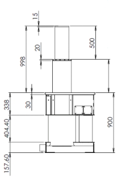
SIZE:
The bollard height when fully raised is nominally 1m above ground and the diameter of the upper section 209mm. The diameter of the lower section 280mm. The base unit 900mm deep x 600mm wide x 750mm long. Bollards should be set at maximum 1.5m centres.

CONSTRUCTION:
The circular bollard is raised and lowered by hydraulic ram inside the bollard. The bollard retracts in two stage into the underground casing. There are hose links to the hydraulic drive unit, which is located above ground, maximum 25m from the bollards. The size of the cabinet depends on the number of bollards, but typically 830mm wide x 400mm deep x 120mm high for a single unit. TT bollard capable of 100Kn axle loading when lowered.

FINISH:
Standard finish on bollard is black with diamond grade reflective strips at top. Other RAL colours available on request.
Drive cabinet grey.
All other exposed steel surfaces hot dipped galvanised.

DRIVE: Each individual bollard has its own drive unit housed in freestanding cabinet to ensure each bollard operates at the same speed.
Drive is electro-hydraulic with high pressure pump, electric motor, and all necessary valves.
Each drive unit has release valve for emergency lowering and hand operated lever for raising in event of power failure.
Drive unit can also include if required oil accumulators for operation without power, the size depending on the number of operations required.
Speed of operation average 6 – 8 seconds up and down.
Operating temperature range -15 to +40. For cold environments, additional heating is required and available.

POWER SUPPLY: Three phase 240/415v 1.5kw minimum.
Steel wire armoured cables, the number of cores depending on control function.
Wiring to IP55 standard.

OPTIONAL SAFETY EQUIPMENT: - Stop/No Entry signs.
- Traffic lights, red/green 200mm diameter in freestanding post.
- Below ground vehicle detection loops.
- Electronic eye beam

CONTROL FUNCTIONS: - Key switch in gatehouse, on post or remote.
- Card reader – swipe – proximity in freestanding post
- Intercom linked to handset in freestanding post
- Below ground vehicle detection loops for automatic raising on entry/exit with timer.
- Automatic link to fire alarm system.
- Fast operation via accumulator
- Heating systems for cold weather

INSTALLATION
Bollards fixed to reinforced concrete base by expansion bolts.
Drainage and power supply ducts connected and concrete filled to finished ground level.